Cécile, suite à une reconversion professionnelle, a acheté ce local "nu" pour installer son activité et recevoir ses patients. Nous l'avons accompagnée au long de la phase de conception, puis son mari Nicolas a pris le relai pour la préparation & le suivi des travaux. Elle peut maintenant travailler de façon optimale, et partager une partie des locaux avec une autre profession libérale.
Plan masse
Plan masse
Plan Etat des Lieux
Plan Etat des Lieux
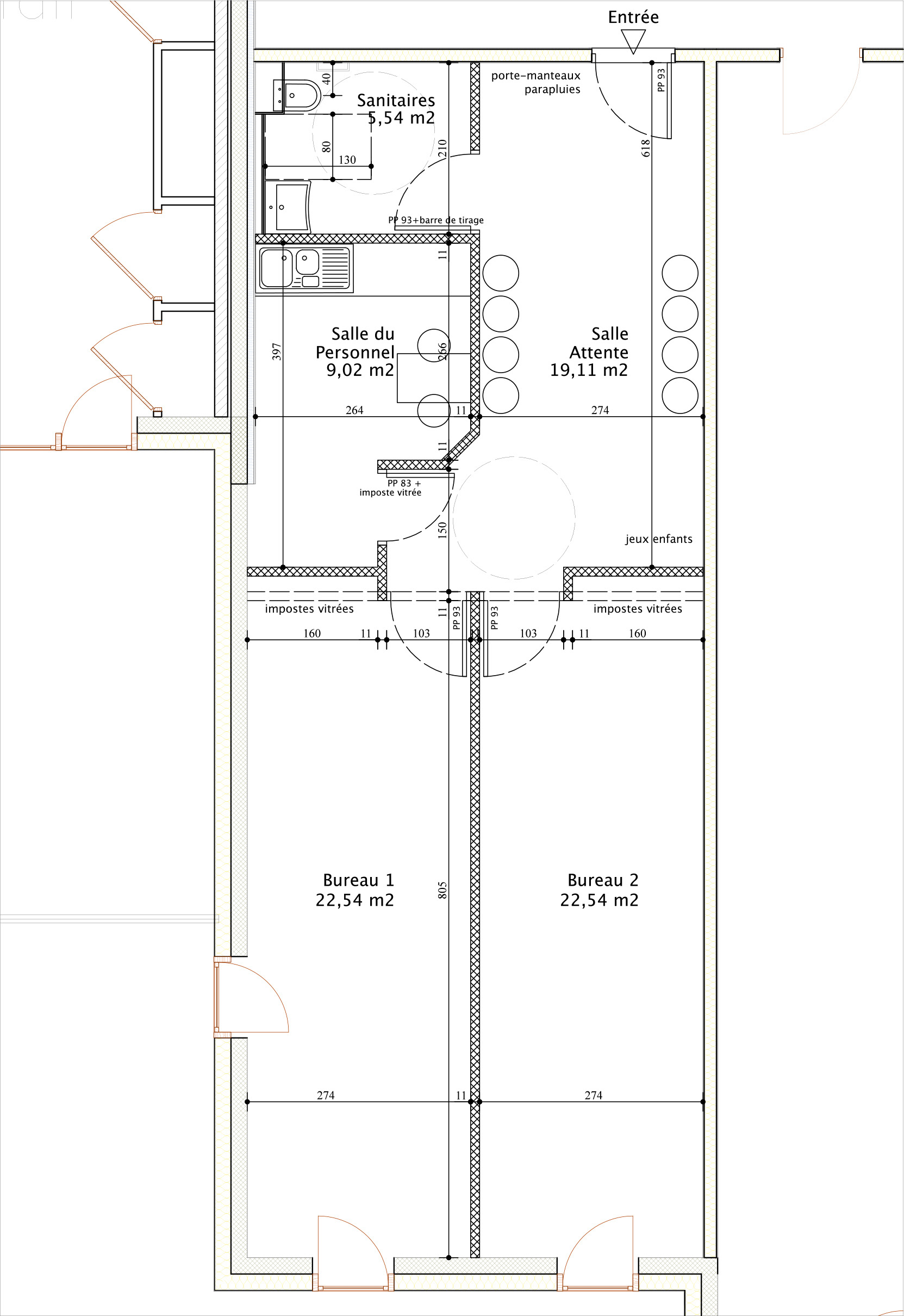
Plan Projet V1
Plan Projet V1
Plan Projet V2
Plan Projet V2
Coupes Projet
Coupes Projet
croquis
croquis
Planche références
Planche références
Entreprises
entreprise générale cinépôle : chazelle TP (Saint étienne 42) |  : non communiquées
EN COULISSES...   ÉTAT DES LIEUX & CHANTIER ​​​​​​​​​​​​​​
Etat des lieux
Etat des lieux
Etat des lieux
Etat des lieux
Back to Top